长江日报大武汉客户端11月8日讯 11月9日,武商梦时代开业,这让原本通行压力就大的武珞路、石牌岭和宝通寺路,面临巨大考验,武汉交警发布“防堵车地图”,为市民出行导航。
梦时代开业前
早高峰期相邻路口至少要等3个红绿灯
梦时代位于武珞路—石牌岭路—文安街—宝通寺路围合的区域,4个出入口分别在石牌岭路,文安街和宝通寺路上。而石牌岭路和宝通寺路原本通行条件就不好,文安街是一条刚修好的新路,双向四股道,这条街上还有一所小学,大门与梦时代的机动车出入口门对门。
据交管部门前期测算,目前,武珞路(宝通寺路-石牌岭路)、石牌岭路、宝通寺路、丁字桥路等周边道路早晚高峰均处于拥堵状态,高峰时段以上道路拥堵指数均超过2.2(严重拥堵),路口车辆各方向排队长度都超过100米,需2至3个信号周期方能通过路口。
随着梦时代开业,预计高峰时段车流还将增加近3000辆,对整个区域交通影响巨大,预计武珞路、石牌岭路、宝通寺路石牌岭路口将出现严重交通拥堵,同时将影响到武珞路的街道口路口、中南路路口以及雄楚大道等周边道路。
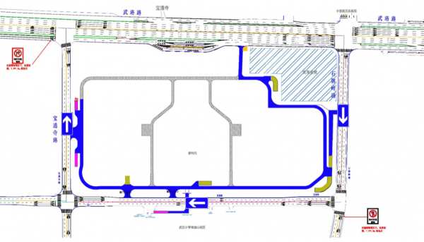
这份通行流线图请收好
抵达商场市民可以这样走:
(一)汉口片区方向
武珞路→石牌岭路→东门→2号、1号地库口

(二)东新片区方向
武珞路→石牌岭路→东门→2号、1号地库口

(三)瑞景路方向
瑞景路→宝通寺路→5号地库口右转

驶离商场市民可以这样走:
车辆主要由1—4号、6号地库口驶出至地面,最后沿地面通道选择大门(北门、南2门、西门)驶离。

商业体周边交通拥堵加剧
将启动应急预案
武昌区交通大队负责人介绍,当梦时代进出车流量过大,导致武珞路西侧队尾排至丁字桥路口、东侧排队至街道口路口时,将启用该应急方案。
将梦时代周边道路组织设置为顺时针单向通行,即石牌岭路(武珞路-文安街)由北向南、文安街(石牌岭路-宝通寺路)由东向西、宝通寺路(文安街-武珞路)由南向北单向通行。

由于梦时代紧邻百瑞景社区,在商业运行高峰期,居民驾车回家或将遇到车流高峰,武昌交警为百瑞景居民规划了3条回家通道。
线路一:武珞路-石牌岭路-文安街-宝通寺路
线路二:武珞路-丁字桥路-瑞景路
线路三:丁字桥路-文安街中段(在建中)-宝通寺路

此外,由于武汉梦时代广场开业高峰时段预计将吸引2000-3000辆车、2万-3万人,届时武昌交通大队会在武珞路宝通寺路口、武珞路石牌岭路口、石牌岭路文安街口、文安街宝通寺路口加强巡管,建议百瑞景社区居民不要将车辆停放在周边道路上。
为应对商场开业带来的交通影响,保障百瑞景居民出行畅通,武昌交通大队反复论证、预判,如遇片区发生大面积的交通拥堵时,采取应急处置方案,即文安街(石牌岭路至宝通寺路)东向西、石牌岭路(武珞路至文安街)北向南、宝通寺路(文安街至武珞路)南向北临时实施单向通行交通管制。
武汉交警提醒,武商梦时代周边宝通寺路、武珞路、文安街、武锅路、石牌岭路均为违停严管路段,路边严禁违法停车。(长江日报记者魏娜 通讯员张鹏 高梓健)
【编辑:邓腊秀】
更多精彩内容,请在各大应用市场下载“大武汉”客户端。
| 留言与评论(共有 0 条评论) “” |