
11月9日,武商梦时代开业,这让原本通行压力就大的武珞路、石牌岭和宝通寺路面临巨大考验,武汉交警发布“防堵车地图”,为市民出行导航。
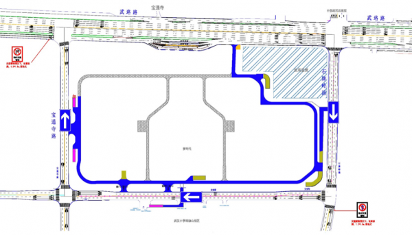
这份通行流线图请收好
抵达商场市民可以这样走:
(一)汉口片区方向
武珞路→石牌岭路→东门→2号、1号地库口

(二)东新片区方向
武珞路→石牌岭路→东门→2号、1号地库口

(三)瑞景路方向
瑞景路→宝通寺路→5号地库口右转

驶离商场市民可以这样走:
车辆主要由1—4号、6号地库口驶出至地面,最后沿地面通道选择大门(北门、南2门、西门)驶离。

▌商业体周边交通拥堵加剧将启动应急预案
武汉市武昌区交通大队负责人介绍,当梦时代进出车流量过大,导致武珞路西侧队尾排至丁字桥路口、东侧排队至街道口路口时,将启用该应急方案。
将梦时代周边道路组织设置为顺时针单向通行,即石牌岭路(武珞路-文安街)由北向南、文安街(石牌岭路-宝通寺路)由东向西、宝通寺路(文安街-武珞路)由南向北单向通行。

由于梦时代紧邻百瑞景社区,在商业运行高峰期,居民驾车回家或将遇到车流高峰,武昌交警为百瑞景居民规划了3条回家通道。
线路一:武珞路-石牌岭路-文安街-宝通寺路
线路二:武珞路-丁字桥路-瑞景路
线路三:丁字桥路-文安街中段(在建中)-宝通寺路

为应对商场开业带来的交通影响,保障百瑞景居民出行畅通,武昌交通大队反复论证、预判,如遇片区发生大面积的交通拥堵时,采取应急处置方案,即文安街(石牌岭路至宝通寺路)东向西、石牌岭路(武珞路至文安街)北向南、宝通寺路(文安街至武珞路)南向北临时实施单向通行交通管制。

武汉交警提醒,武商梦时代周边宝通寺路、武珞路、文安街、武锅路、石牌岭路均为违停严管路段,路边严禁违法停车。

欢迎关注
湖北发布官方视频号
湖北发布编辑部出品 | 转载请注明出处
来源:湖北发布、长江日报、武汉发布
编辑:周密
| 留言与评论(共有 0 条评论) “” |